风风棋牌跑胡子最新版本
风风棋牌跑胡子最新版本
- ECSG电蒸汽发生器 E6-72M系列安装操作说明
- 棋牌平台EVC Turflow 换热器使用说明书
- 棋牌平台BT6-B 洁净型压力平衡式最全棋牌平台特点介绍
- 棋牌平台BCV1和BCV20 排污控制阀使用说明书
- 棋牌平台BC3250排污控制器安装使用说明书
联系我们
联系人:刘经理
手机:13295105805
电话:
邮箱:540329100@qq.com
地址:13295105805
阀门知识
棋牌平台最全棋牌平台安装方式是什么?
- 作者:棋牌平台
- 发布时间:2024-07-15
- 点击:130次
棋牌平台最全棋牌平台的重量比较多,类型不同可能安装的方式会有差别,我们今天以浮球式最全棋牌平台来做举例安装的方式。首先我们来简单的介绍一下浮球式疏水阀的作用。
棋牌平台FT浮球疏水阀是利用蒸汽和冷凝水的密度差来操作的。这种类型的疏水阀操作十分便利,能在冷凝水负荷变化时有效工作,同时不受操作压力骤然变化的影响。与其尺寸相比,该型疏水阀排量很大,最大可达150,000kg/h,且能随冷凝水的生成立即排放。由于这种特点,该疏水阀是蒸汽控制设备的理想选择。该疏水阀的最大工作压力可达80bar。

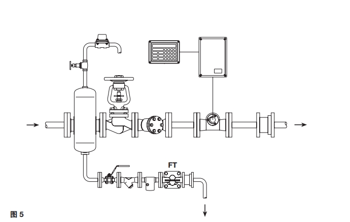
浮球式疏水阀安装示意图
棋牌平台最全棋牌平台安装方式介绍:
浮球疏水阀可以水平安装或者垂直安装。通常情况下,浮球疏水阀的水平安装会更加方便,因为水平安装可以不受管道的限制,只要安装在管道的适当位置即可,而且更加直观。
垂直安装的优点是可以减少管道的长度,从而减小管道的压力,同时还可以节约更多的空间。但是,垂直安装也需要考虑到一些问题,比如在排放水的时候,因为疏水阀高度较高,所以需要考虑设计排放管道,并且排放管道受限制,需要安装在垂直位置。

浮球式疏水阀正确安装图
浮球式疏水阀应尽可能靠近设备出品安装,以防产生汽锁。当冷凝水出口和最全棋牌平台间的管道之间充满蒸汽时,将阻止冷凝水流向疏水阀,即出现蒸汽汽锁。这将导致系统积水,影响设备效率。这与水系统中的气锁类似。
- 上一篇:棋牌平台浮球式疏水阀安装方法指南
- 下一篇:棋牌平台浮球疏水阀说明书-安装维修指南
新闻资讯
-
2025-06-23
ECSG电蒸汽发生器 E6-72M系列安装操作说明
-
2025-06-09
棋牌平台EVC Turflow 换热器使用说明书
-
2025-05-19
棋牌平台BT6-B 洁净型压力平衡式最全棋牌平台特点介绍
-
2025-04-28
棋牌平台BCV1和BCV20 排污控制阀使用说明书
-
2025-04-14
棋牌平台BC3250排污控制器安装使用说明书
-
2025-03-31
棋牌平台BC3150排污控制器安装使用说明书
